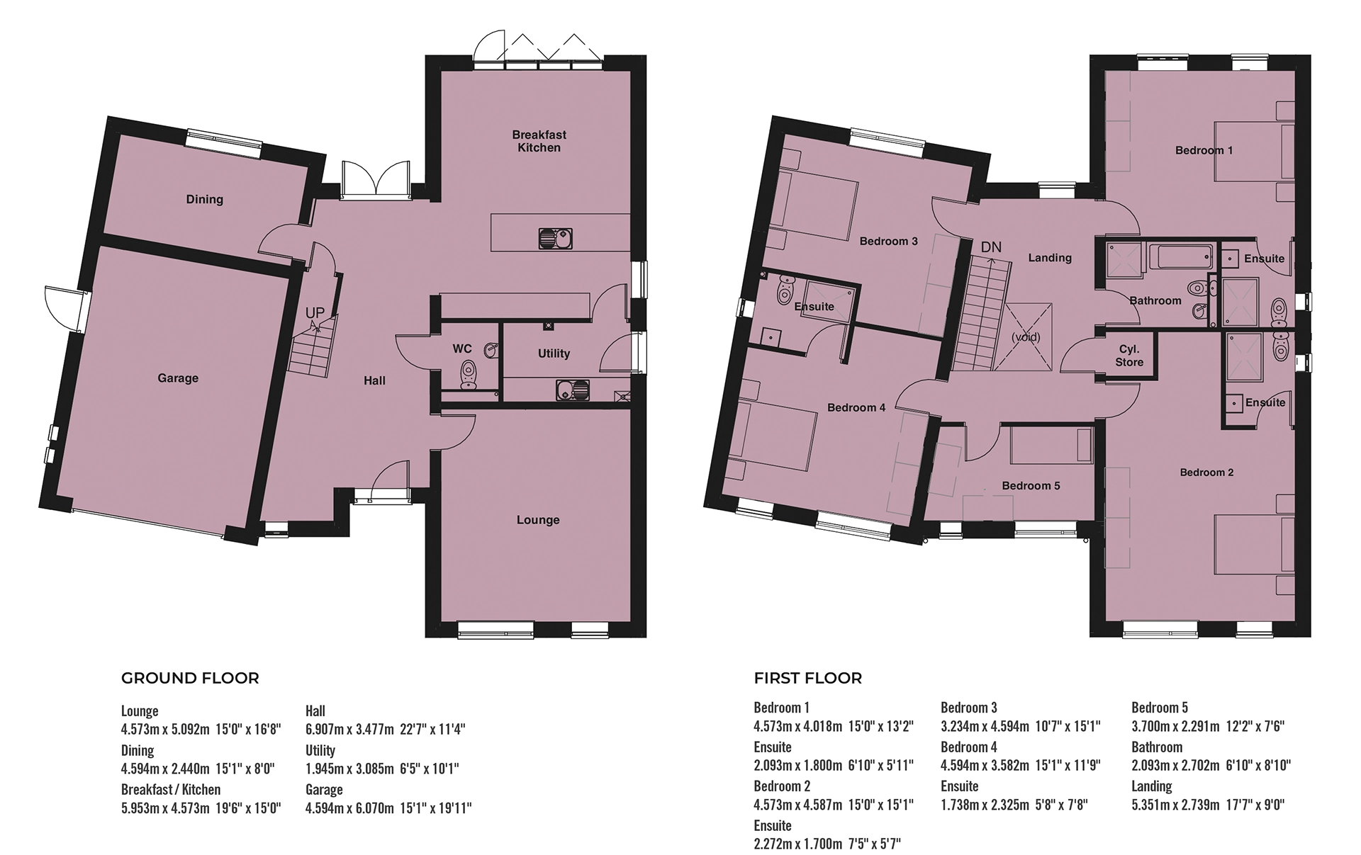
The Rudby - 5 Bed
This magnificent detached family home simply oozes with space.
To the ground floor you will find a dining/kitchen, separate lounge and formal dining room, study, cloakroom, utility and integral garage.
The upper floor comprises five spacious bedrooms, three of which are en-suite, and a house bathroom.
Want To Know More?
If you have any questions about this property, The Meadows in general or would like to arrange a time to visit our show home, simply either give us a call on 07815 486916 or email themeadows@lslnewhomes.co.uk
